1
/
of
8
Izen Engineering
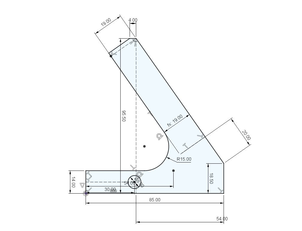
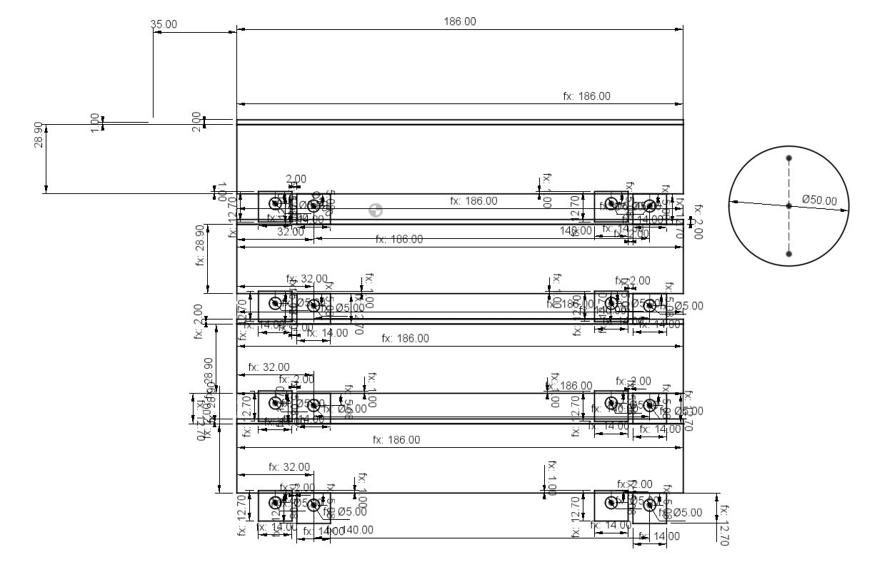
Pen to CAD
Pen to CAD
Get a drawing or part reverse engineered and converted to a CAD model.
When the file is made a link like this will be sent to your email (must be opened on a computer) and you will be able to view the model, take measurements, inspect the cross section, view properties and download in your chosen format.
Share







